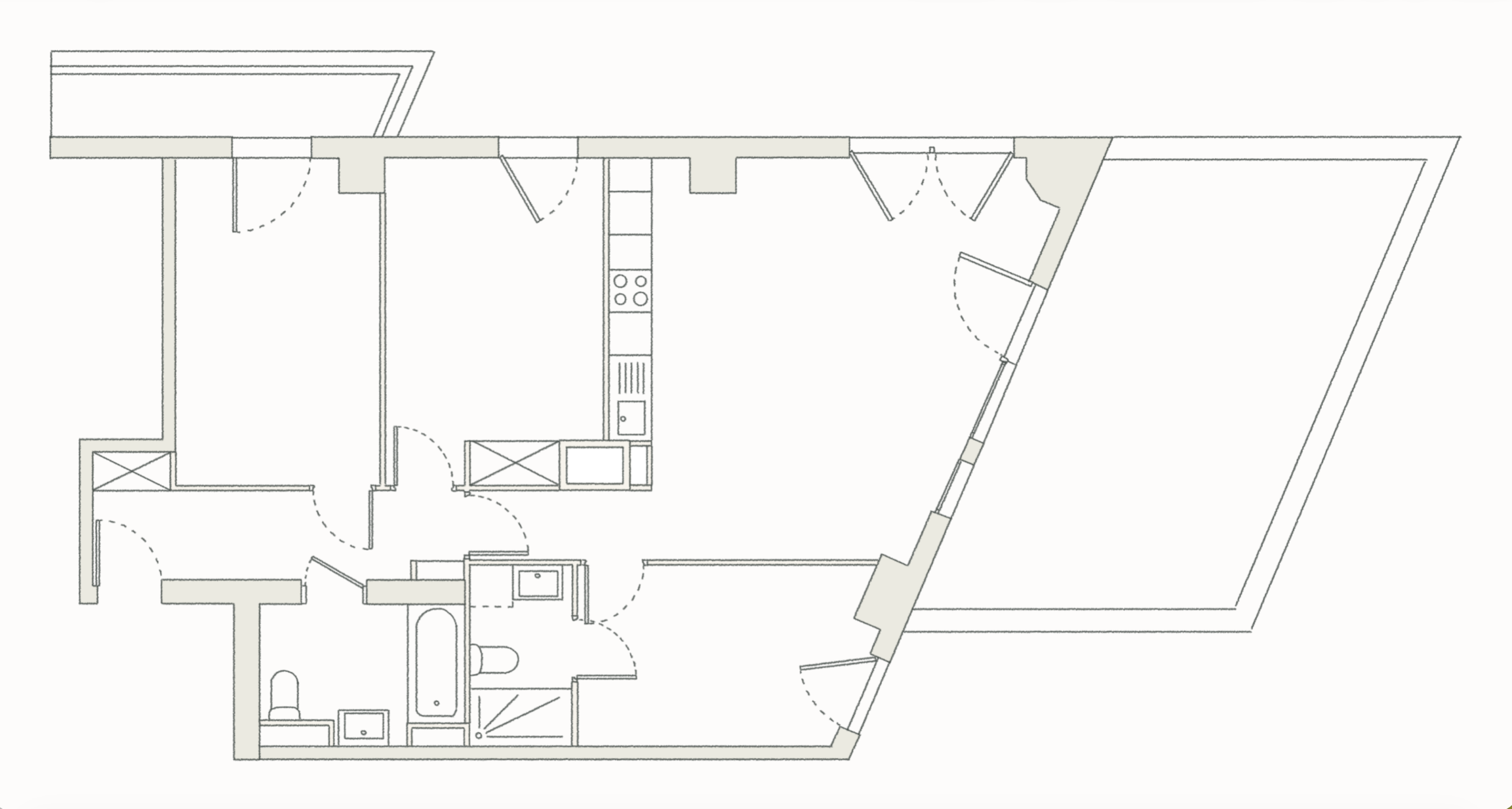
Ici les objectifs sont :
- Agrandir la pièce de vie en supprimant l’une des chambres
- Repenser la cuisine pour gagner en fonctionnalité
- Créer un WC séparé
- Apporter davantage de rangement dans la chambre parentale
- Réduire l’effet « couloir » de l’entrée
Pour cela, l’ancienne salle d’eau et la chambre attenante sont remplacées par une cuisine conviviale et fonctionnelle avec un ilot central. Cet agencement permet aussi de diminuer l’effet « couloir » de l’entrée.
La première chambre donnant sur la terrasse devient la chambre parentale, la cloison est reculée pour intégrer des rangements supplémentaires.
Un dégagement est créer dans l’entrée afin de desservir la seconde chambre et le WC indépendant.